Be Your Own House Contractor

Save 25% without Lifting a Hammer

Contributors

By Carl Heldmann

On Sale
Apr 1, 2006
Page Count
176 pages
Publisher
Storey
ISBN-13
9781580178402

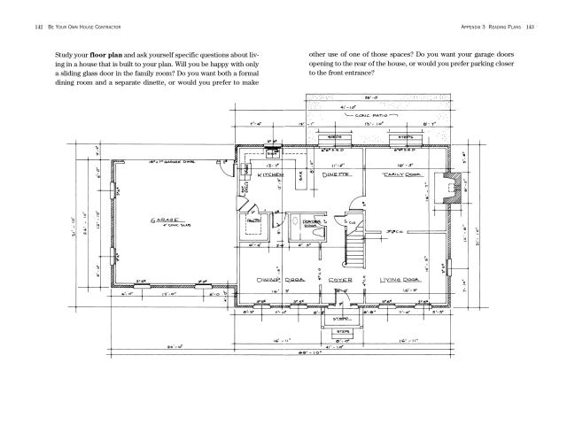
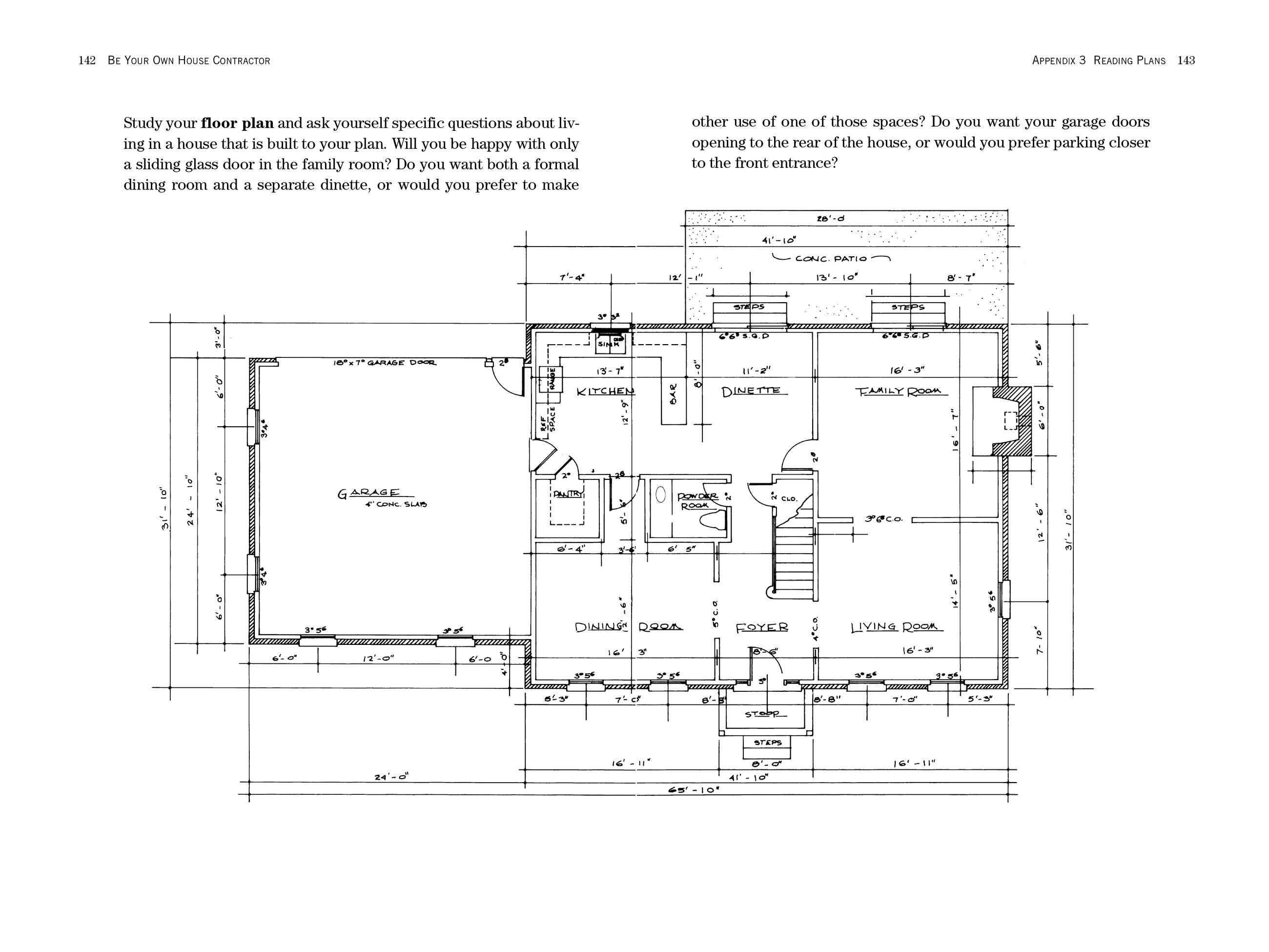
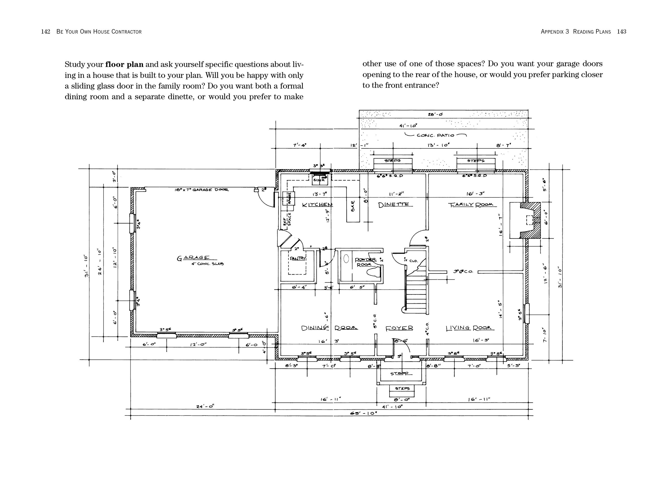
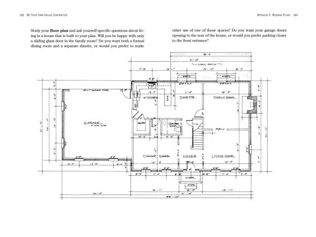
You don’t need to depend on (or pay) a general contractor to manage your construction project. Whether you’re building a new home or renovating an existing one, you can manage the job yourself. Carl Heldmann outlines how to purchase your own land, set a reasonable budget and schedule, describe your needs and vision to an architect, and hire subcontractors to do the actual building. Cut out the middleman and save as much as 25 percent on your beautiful new home!

  • “If you are bound and determined to plunge ahead…pick up a copy of this little book before you start.”
  • “If you are thinking about building a new house, or renovating your current home, first read [this book].”— San Diego Union-Tribune

    “If you are bound and determined to plunge ahead…pick up a copy of this little book before you start.”— Seattle Post-Intelligencer

    “If you’re intrigued by the idea of being your own contractor for your dream house, here’s where to begin.”— Arkansas Democrat-Gazette

    “…Heldmann offers something that you can hold dear for a lifetime: the skinny on homebuilding.” — Timber Home Building“Carl Heldmann has written the bible for people who want to act as their own general contractor….Strewn through the book are interesting tidbits a layman probably wouldn’t hear unless he showed up at a job site at break time with a box of Krispy Kreme doughnuts.” – Los Angeles Times

Formats and Prices

Price

$18.99

Price

$24.99 CAD

Format

Trade Paperback

Format:

Trade Paperback $18.99 $24.99 CAD

Carl Heldmann

Carl Heldmann

About the Author

Carl Heldmann is a construction loan consultant and an expert on residential construction costs. A licensed homebuilder and real estate broker, he is co-founder of the Michigan School of Home Building and founder of the North Carolina School of Home Building. He lives in Grand Rapids, Michigan.

Learn more about this author